Kameralne osiedle domów - 30 minut od Krakowa

bocheński, Bochnia, Proszówki

929 000 PLN

Numer oferty519
Typ transakcjiSprzedaż
Cena929 000 PLN
Powierzchnia142.74 m2
Cena za m26 508,34 PLN / m2
Liczba pokoi4
Czynsz pln0
Powierzchnia działki m2430
Rok budowy2025
Stan domudeweloperski
Standard wykończeniawysoki
Rynekpierwotny
Typ zabudowywolnostojący
Typ dachuskośny
Materiał budowlanyceramiczny Porotherm
Technologiamurowana
Typ drogiasfaltowa
Typ ogrodzeniametalowe
Powierzchnia mieszkalna142.74
Powierzchnia użytkowa133.6
Elewacjatynk
Powierzchnia salonu22.23
Liczba kondygnacji2
Forma własnościwłasność
Liczba łazienek3
Liczba sypialni3
Kuchniaaneks
Łazienkapokój kąpielowy
OknaPCV
Podłogabeton
Łącze internetoweświatłowód
Liczba miejsc parkingowych1
Garażw bryle
Prądjest
Kanalizacjamiejska
Gazjest
Wodamiejska
Ogrzewaniegazowe
Typ ogrodzeniametalowe, mieszane
Typ drogiasfaltowa
Typ balkonuogródek, taras
Ogrzewaniegazowe
Kameralne osiedle domów - 30 minut od Krakowa (bocheński, Bochnia, Proszówki)

Kameralne osiedle domów w Proszówkach - tylko 5 minut od Bochni!

DOSTĘPNE OSTATNIE DWA DOMY!


- Lokalizacja: Proszówki k. Bochni
- Powierzchnia domu: 142,74 m2
- Powierzchnia działki: od 3,9 do 5,3 ar
- Garaż: jednostanowiskowy (w bryle budynku)
- Dojazd do Krakowa: 30 min autostradą A4
- Cena: 929 000 zł
- Brak prowizji i PCC 2%!

Szukasz miejsca, w którym wysoka jakość wykonania spotyka się z komfortem, a spokój podmiejskiego życia nie oznacza rezygnacji z wygody? Oto idealna propozycja dla Ciebie!
Oferujemy cztery nowoczesne domy jednorodzinne w stanie deweloperskim, położone w spokojnej i zielonej okolicy Proszówek, tuż przy granicy Bochni - zaledwie 1 km od miasta i 30 minut autostradą A4 do Krakowa.

Wysoki standard wykończenia:
Domy zostały zaprojektowane indywidualnie z myślą o funkcjonalności, wygodzie i estetyce.

Konstrukcja i wykończenie:
- ściany z pustaka ceramicznego Wienerberger Porotherm 25 P+W - wysoka izolacyjność i trwałość
- dachówka ceramiczna płaska - elegancka i odporna na warunki pogodowe
- ocieplenie ścian styropianem 20 cm, fundamenty ocieplone styrodurem
- elewacja z tynkiem strukturalnym odpornym na zabrudzenia

Stolarka i elementy zewnętrzne:
- solidne okna PCV 3-szybowe
- okno tarasowe aluminiowe, w systemie przesuwnym HS
- automatyczne rolety zewnętrzne sterowane pilotem w każdym oknie
- balustrady balkonowe ze stali nierdzewnej
- aluminiowe parapety zewnętrzne
- drzwi wejściowe antywłamaniowe
- brama garażowa z napędem automatycznym
- tarasy wyłożone kostką brukową

Komfort i technologia:
- ogrzewanie podłogowe na całej powierzchni użytkowej gwarantujące równomierne ciepło i niskie rachunki
- piec gazowy Vaillant z zasobnikiem ciepłej wody (możliwość podpięcia pompy ciepła)
- wykonane wszystkie instalacje wewnętrzne
- wentylacja grawitacyjna w całym budynku
- przygotowane instalacje pod: fotowoltaikę, system alarmowy, monitoring, domofon i klimatyzację
- podziemny zbiornik retencyjny na deszczówkę

Przemyślany układ pomieszczeń:

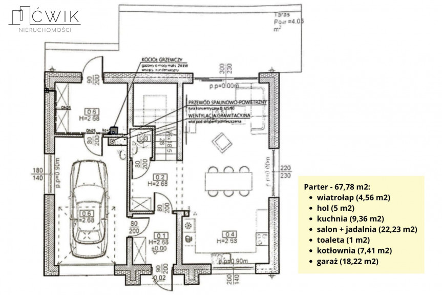
Parter - 67,78 m2:
- wiatrołap (4,56 m2)
- hol (5 m2)
- kuchnia (9,36 m2)
- salon z jadalnią i wyjściem na taras (22,23 m2)
- toaleta (1 m2)
- kotłownia (7,41 m2)
- garaż (18,22 m2)
- dodatkowo taras zewnętrzny

Poddasze - 74,96 m2:
- komunikacja (13,61 m2)
- pokój + garderoba + łazienka (22,32 m2)
- pokój (13,50 m2)
- pokój (13,59 m2)
- łazienka (11,94 m2)
+ strych użytkowy - wyłożony płytą OSB (idealne miejsce do przechowywania)

Media:
- wodociąg i kanalizacja - wykonane przyłącza do budynku;
- prąd - w granicy działki;
- gaz - wykonana rozbudowa sieci gazowej w drodze dojazdowej;
- światłowód - doprowadzony do budynku.

Areał działek:
- Dom nr 1 - działka nr 967 - 4,3 ar
- Dom nr 2 - działka nr 966 - 3,9 ar
- Dom nr 3 - działka nr 965 - 4,9 ar
- Dom nr 4 - działka nr 964 - 5,3 ar

Otoczenie inwestycji:
- Osiedle zamknięte z automatyczną bramą wjazdową;
- Szeroka, wykostkowana droga osiedlowa gwarantująca wygodny przejazd;
- Każdy dom ogrodzony - od frontu solidne ogrodzenie z kamienia z bramą automatyczną i furtką, z pozostałych stron panele;
- Podjazdy, wejścia, tarasy i opaski wokół budynków wyłożone estetyczną kostką brukową. W pozostałej części zasiana trawa;
- Każda działka oświetlona lampami zewnętrznymi.

Lokalizacja:
Proszówki to doskonała lokalizacja łącząca ciszę i spokój z łatwym dostępem do miasta. Zaledwie 2 minuty dzielą osiedle od Bochni, a autostrada A4 jest w zasięgu 7 minut jazdy samochodem, co umożliwia szybkie połączenie z Krakowem i innymi miastami. W odległości niecałych 4 km znajduje się dworzec PKP.

W okolicy dostępne jest pełne zaplecze handlowo-usługowe, w tym sklepy, restauracje, apteki, szkoły i przedszkola, co ułatwia codzienne życie. Jednocześnie bliskość Puszczy Niepołomickiej oraz okolicznych terenów zielonych sprzyja aktywnemu wypoczynkowi na świeżym powietrzu.

Dojazd do:
- Bochni - 2 min
- Brzeska - 15 min
- Krakowa - 30 min
- Tarnowa - 30 min

W pobliżu znajdziesz:
- Sklep spożywczy (Biedronka) - 1 km
- Plac zabaw - 600 m
- Żłobek i przedszkole - 1,5 km
- Szkoła podstawowa - 2 km
- Restauracja - 1,3 km
- Stacja Paliw - 1,3 km
- Ośrodek zdrowia - 1,7 km
- Apteka - 1,8 km
- Basen - 1,8 km
- Lodowisko - 1,8 km
- Puszcza Niepołomicka - 3,1 km

Cena:
- Dom nr 1 - 4,3 ar - 929 000 PLN
- Dom nr 2 - 3,9 ar - 929 000 PLN
- Dom nr 3 - 4,9 ar - SPRZEDANY
- Dom nr 4 - 5,3 ar - SPRZEDANY

Kupujący nie płaci prowizji dla biura oraz jest zwolniony z podatku od czynności cywilnoprawnych 2%.

Zapraszam do kontaktu telefonicznego oraz na prezentację w terenie.


Treść niniejszego ogłoszenia nie stanowi oferty handlowej w rozumieniu Kodeksu Cywilnego.
Oferta wysłana z programu IMO dla pośredników.
Informacje
Internet Poddasze Osiedle zamknięte Drzwi/okna antywłamaniowe Rolety antywłamaniowe
bocheński, Bochnia, Proszówki

Kontakt