Przestronny apartament 123 m2 - 8 km od centrum

Kraków, Dożynkowa

1 069 000 PLN

Numer oferty501
Typ transakcjiSprzedaż
Cena1 069 000 PLN
Powierzchnia122.8 m2
Cena za m28 705,21 PLN / m2
Liczba pokoi5
Piętro1/2
Rok budowy2025
Standard wykończeniawysoki
Stan lokaludeweloperski
Typ budynkuapartamentowiec
Rynekpierwotny
Materiał budowlanysilikat
Forma własnościwłasność
Liczba sypialni4
Liczba łazienek3
Głośnośćciche
Kuchniaaneks
Łazienkaz wc
OknaPCV
Podłogabeton
Ścianytynk wapienny
Łącze internetoweświatłowód
Parkingmiejsce postojowe
Liczba miejsc parkingowych2
Ogrzewaniegazowe
Typ balkonuduży
Ogrzewaniegazowe
Przestronny apartament 123 m2 - 8 km od centrum (Kraków, Dożynkowa)

Zamieszkaj w przestronnym, nowoczesnym apartamencie na kameralnym osiedlu, które łączy komfort życia z bliskością natury i miasta!

Oferujemy wyjątkowe, 5-pokojowe mieszkanie o powierzchni 122,8 m2 z dodatkowym balkonem (18 m2), znajdujące się w inwestycji przy ulicy Dożynkowej w Krakowie. Osiedle o doskonałej lokalizacji - zaledwie 8 km od centrum miasta, a jednocześnie w pobliżu terenów zielonych, które zapewniają ciszę i spokój.

Oferowane mieszkanie jest w stanie deweloperskim, z tytułem własności co pozwoli na redukcję miesięcznych kosztów (brak czynszu).

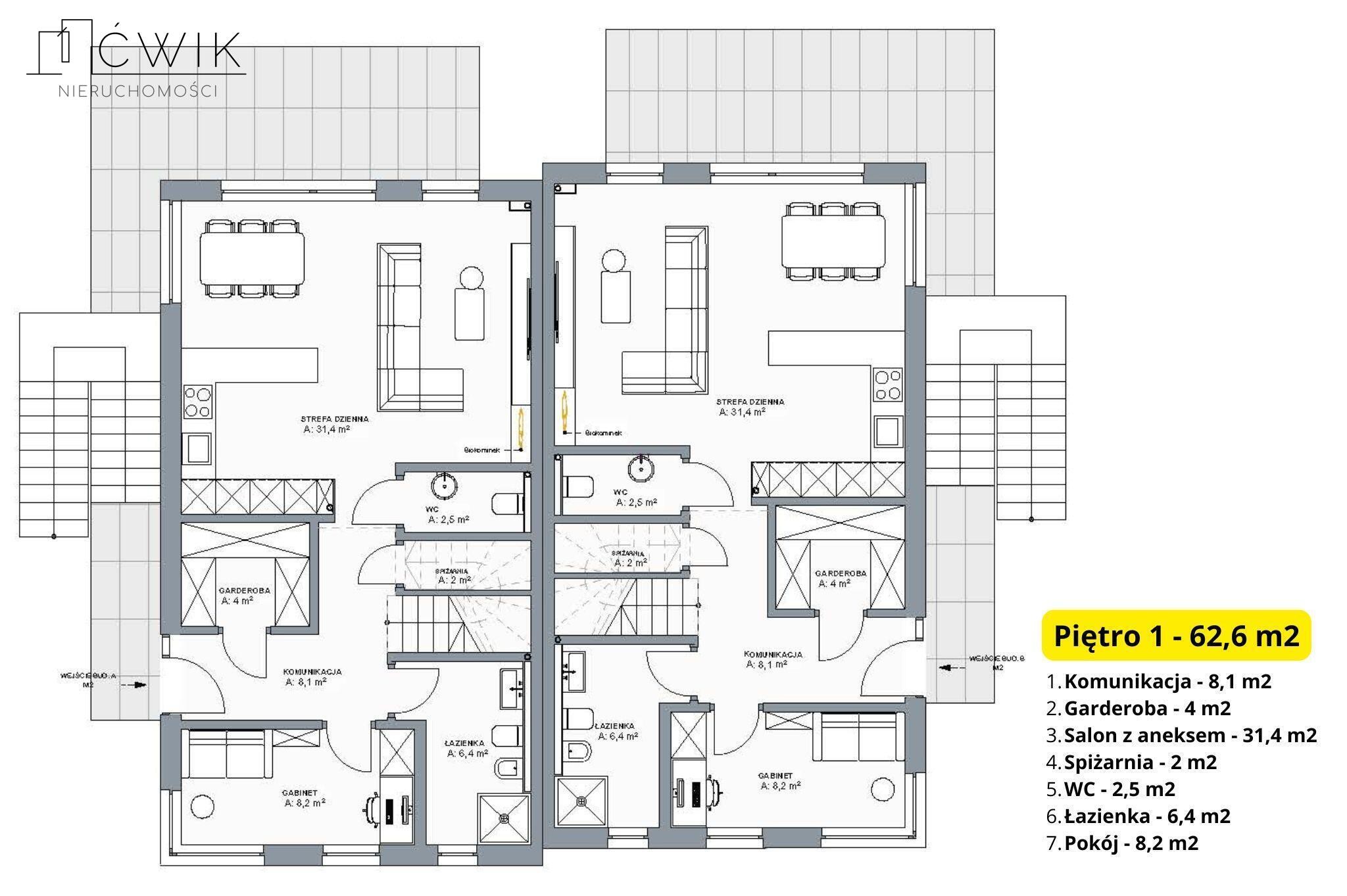
Układ pomieszczeń:
Mieszkanie usytuowane na dwóch poziomach oferuje ogromną przestronność i funkcjonalność:
- Na I piętrze (62,6 m2) znajdują się: komunikacja, garderoba, przestronny salon z aneksem kuchennym, spiżarnia, WC, łazienka oraz pokój.
- Na II piętrze (60,2 m2) do dyspozycji są: komunikacja, łazienka, garderoba oraz 3 pokoje - w tym sypialnia z własną łazienką.
Do mieszkania przynależy również duży balkon o powierzchni około 18 m2, idealny do relaksu po ciężkim dniu.

Wielka zaleta: możliwość podziału na dwa niezależne mieszkania!
Dzięki przemyślanej aranżacji, istnieje opcja wydzielenia dwóch oddzielnych lokali z osobnymi wejściami. To doskonała opcja dla dwóch rodzin szukających wspólnej przestrzeni lub inwestorów planujących wynajem.

Miejsca postojowe:
Do mieszkania przynależą dwa miejsca parkingowe na terenie osiedla, każde w cenie 40 000 PLN.
Dodatkowo dostępna jest możliwość zakupu miejsca postojowego pod wiatą, w cenie 50 000 PLN.

Wysoki standard wykończenia:
Mieszkanie charakteryzuje się nowoczesnym i solidnym wykończeniem, w tym:
- Okna PCV 3-szybowe, zapewniające doskonałą izolację termiczną i akustyczną. Dodatkowo zamontowane kasety pod automatyczne rolety zewnętrzne.
- Antywłamaniowe drzwi wejściowe.
- Dach pokryty blachodachówką na rąbek, odporną na zmienne warunki atmosferyczne.
- Budynki wykonane z bloczków silikatowych, gwarantujących wysoką trwałość oraz efektywność energetyczną.
- Elewacja z zastosowaniem styropianu o grubości 20 cm, z wykończeniem silikonowym - łatwa w utrzymaniu czystości i odporna na zabrudzenia.
- Tynki maszynowe gipsowe, utwardzane oraz wylewki cementowe zacierane na gładko, zapewniające trwałość i estetyczny wygląd.
- Ogrzewanie podłogowe rozprowadzone we wszystkich pomieszczeniach.
- Budynki ogrzewane piecem gazowym dwufunkcyjnym.
- Balkony wykończone płytkami na dystansach z fugą, a balustrady wykonane ze stali nierdzewnej, gwarantujące trwałość i estetyczny wygląd.

Media:
Każde mieszkanie posiada gotową instalację wodną, kanalizacyjną, elektryczną, gazową oraz multimedialną (bez gniazd, włączników).
Do budynków będzie doprowadzony przewód światłowodowy.

Otoczenie:
Osiedle składa się z 6 nowoczesnych budynków dwulokalowych, co gwarantuje kameralność i wygodę. Całość ogrodzona (z wyjątkiem strony wjazdowej), a pomiędzy ogródkami znajdują się ogrodzenia panelowe. Drogi dojazdowe oraz miejsca parkingowe zostały wyłożone kostką betonową, natomiast teren wokół budynków wyrównany i obsiany trawą.
Dodatkowo, istnieje możliwość postawienia prywatnej komórki lokatorskiej na terenie osiedla (szczegóły do uzgodnienia z deweloperem).

Lokalizacja:
Osiedle zlokalizowane jest w spokojnej okolicy, w sąsiedztwie domów jednorodzinnych, co zapewnia komfort życia. Dla miłośników aktywnego wypoczynku, w pobliżu znajdują się tereny zielone, w tym Park Leśny Witkowice, ze ścieżkami leśnymi, placem zabaw i altanami piknikowymi. Bliskość centrum Krakowa (zaledwie 20 minut jazdy samochodem) pozwala na szybki dostęp do wszelkich udogodnień miejskich.

Komunikacja i infrastruktura:
- Przystanek autobusowy (os. Marszowiec) - 250 m
- Stacja PKP Kraków Łobzów - 6 km
- Droga krajowa nr 7 - 5 min jazdy samochodem
- Droga krajowa nr 79 - 7 min
- Autostrada A4 - 18 min
- Lotnisko w Balicach - 17 min

W pobliżu znajdziesz:
- Paczkomat - 300 m
- Sklep spożywczy Lewiatan - 350 m
- Żłobek - 350 m
- Klub sportowy - 500 m
- Auto serwis - 600 m
- Apteka - 1,5 km
- Przychodnia zdrowia - 1,9 km
- Dentysta - 1,9 km
- Restauracja - 2 km
- Szkoła podstawowa - 2,2 km
- Przedszkole - 2,2 km
- Sklep spożywczy Lidl - 3,5 km
- Stacja paliw - 4 km

Harmonogram inwestycji
- Zakończenie budowy: marzec/kwiecień 2026
- Oddanie mieszkań do użytkowania: czerwiec 2026

Cena:
Mieszkanie 5-pokojowe, 122,8 m2 - 1 069 000 PLN (8705 zł / m2)
Dwa miejsca parkingowe - 80 000 PLN
RAZEM: 1 149 000 PLN

Dostępne mieszkania: budynek C i D

Kupujący zwolnieni z podatku 2% PCC i prowizji dla biura nieruchomości!

Zapraszam do kontaktu – w ofercie posiadamy również inne układy mieszkań w tej inwestycji.


Treść niniejszego ogłoszenia nie stanowi oferty handlowej w rozumieniu Kodeksu Cywilnego.
Oferta wysłana z programu IMO dla pośredników.
Informacje
Internet Gaz Osiedle zamknięte Dwupoziomowe Drzwi/okna antywłamaniowe
Kraków, Dożynkowa

Kontakt