Ostatni dom - wysoki standard - 30 min od Krakowa

bocheński, Bochnia, Proszówki

929 000 PLN

Numer oferty554
Typ transakcjiSprzedaż
Cena929 000 PLN
Powierzchnia142.74 m2
Cena za m26 508,34 PLN / m2
Liczba pokoi4
Czynsz pln0
Powierzchnia działki m2390
Rok budowy2025
Stan domudeweloperski
Standard wykończeniawysoki
Rynekpierwotny
Typ zabudowywolnostojący
Typ dachuskośny
Materiał budowlanyceramiczny Porotherm
Technologiamurowana
Typ drogiasfaltowa
Typ ogrodzeniametalowe
Powierzchnia mieszkalna142.74
Powierzchnia użytkowa133.6
Elewacjatynk
Powierzchnia salonu22.23
Liczba kondygnacji1
Forma własnościwłasność
Liczba łazienek3
Liczba sypialni3
Kuchniaaneks
Łazienkapokój kąpielowy
OknaPCV
Podłogabeton
Łącze internetoweświatłowód
Liczba miejsc parkingowych1
Garażw bryle
Prądjest
Kanalizacjamiejska
Gazjest
Wodamiejska
Ogrzewaniegazowe
Typ ogrodzeniametalowe
Typ drogiasfaltowa
Typ balkonuogródek, taras
Ogrzewaniegazowe
Ostatni dom - wysoki standard - 30 min od Krakowa (bocheński, Bochnia, Proszówki)

Ostatni dom na kameralnym osiedlu w Proszówkach - tylko 5 minut od Bochni!

  • Lokalizacja: Proszówki k. Bochni
  • Powierzchnia domu: 142,74 m2
  • Powierzchnia działki: 3,9 ar
  • Garaż: jednostanowiskowy (w bryle budynku)
  • Dojazd do Krakowa: 30 min autostradą A4
  • Cena: 929 000 zł
  • Brak prowizji i PCC 2%!

Szukasz miejsca, w którym wysoka jakość wykonania spotyka się z komfortem, a spokój podmiejskiego życia nie oznacza rezygnacji z wygody? Oto idealna propozycja dla Ciebie!

Oferujemy nowoczesny dom jednorodzinny w stanie deweloperskim, położony w spokojnej i zielonej okolicy Proszówek, tuż przy granicy Bochni - zaledwie 1 km od miasta i 30 minut autostradą A4 do Krakowa.

Wysoki standard wykończenia:
Dom został zaprojektowany indywidualnie z myślą o funkcjonalności, wygodzie i estetyce.

Konstrukcja i wykończenie:

  • ściany z pustaka ceramicznego Wienerberger Porotherm 25 P+W - wysoka izolacyjność i trwałość
  • dachówka ceramiczna płaska - elegancka i odporna na warunki pogodowe
  • ocieplenie ścian styropianem 20 cm, fundamenty ocieplone styrodurem
  • elewacja z tynkiem strukturalnym odpornym na zabrudzenia

Stolarka i elementy zewnętrzne:

  • solidne okna PCV 3-szybowe
  • okno tarasowe aluminiowe, w systemie przesuwnym HS
  • automatyczne rolety zewnętrzne sterowane pilotem w każdym oknie
  • balustrady balkonowe ze stali nierdzewnej
  • aluminiowe parapety zewnętrzne
  • drzwi wejściowe antywłamaniowe
  • brama garażowa z napędem automatycznym
  • taras wyłożony kostką brukową

Komfort i technologia:

  • ogrzewanie podłogowe na całej powierzchni użytkowej gwarantujące równomierne ciepło i niskie rachunki
  • piec gazowy Vaillant z zasobnikiem ciepłej wody (możliwość podpięcia pompy ciepła)
  • wykonane wszystkie instalacje wewnętrzne
  • wentylacja grawitacyjna w całym budynku
  • przygotowane instalacje pod: fotowoltaikę, system alarmowy, monitoring, domofon i klimatyzację
  • podziemny zbiornik retencyjny na deszczówkę

Przemyślany układ pomieszczeń:

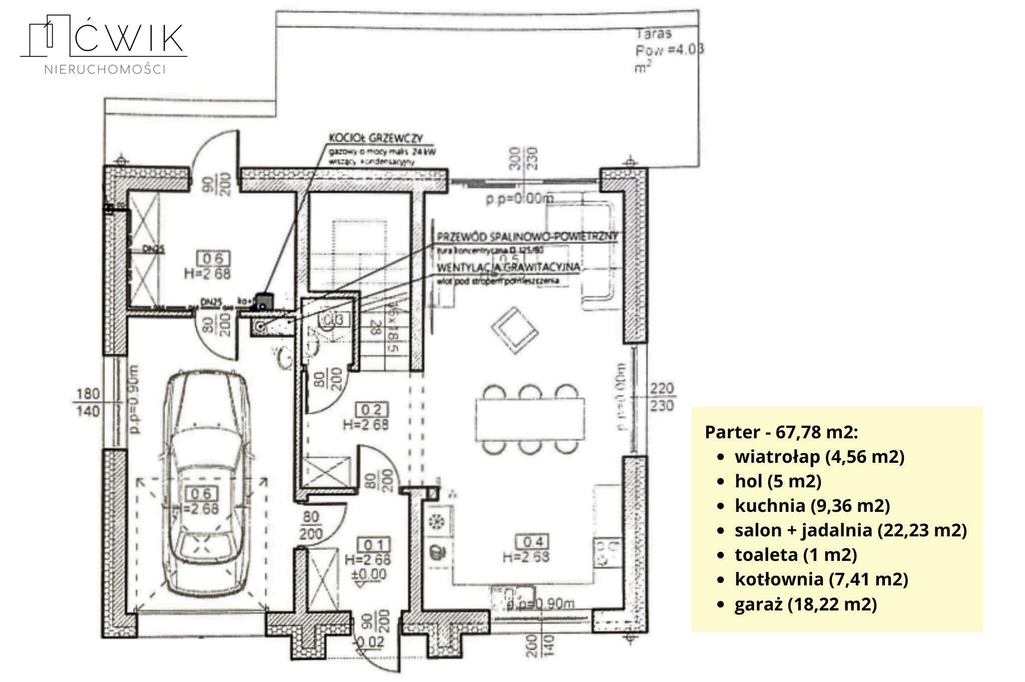
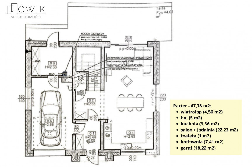
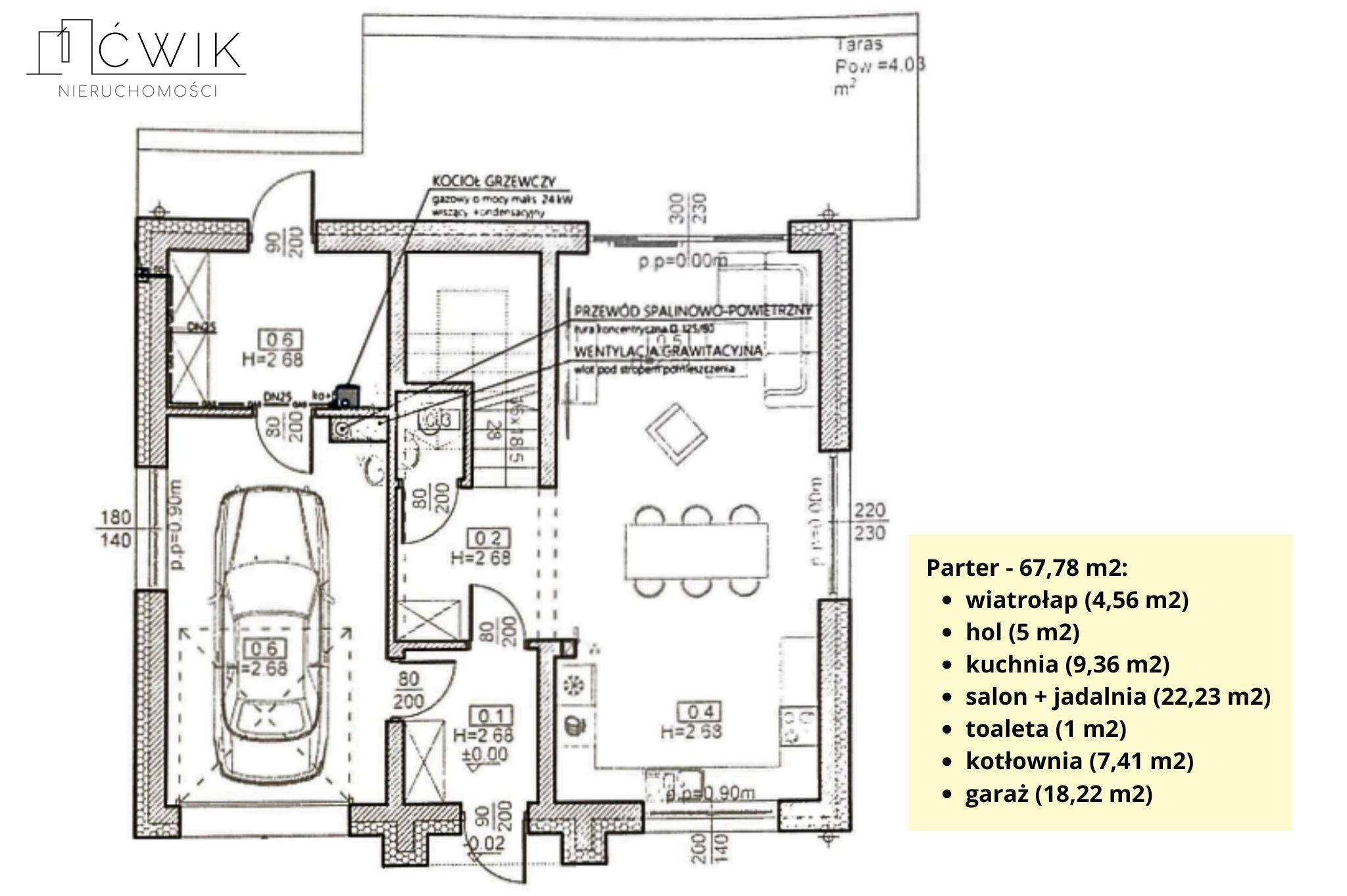
Parter - 67,78 m2:

  • wiatrołap (4,56 m2)
  • hol (5 m2)
  • kuchnia (9,36 m2)
  • salon z jadalnią i wyjściem na taras (22,23 m2)
  • toaleta (1 m2)
  • kotłownia (7,41 m2)
  • garaż (18,22 m2)
  • dodatkowo taras zewnętrzny wyłożony kostką brukową

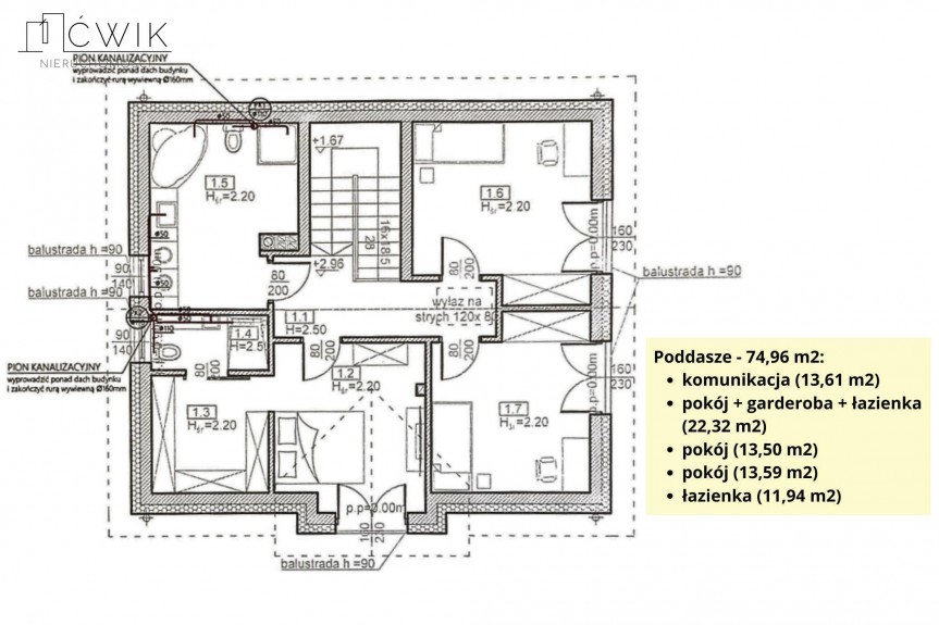
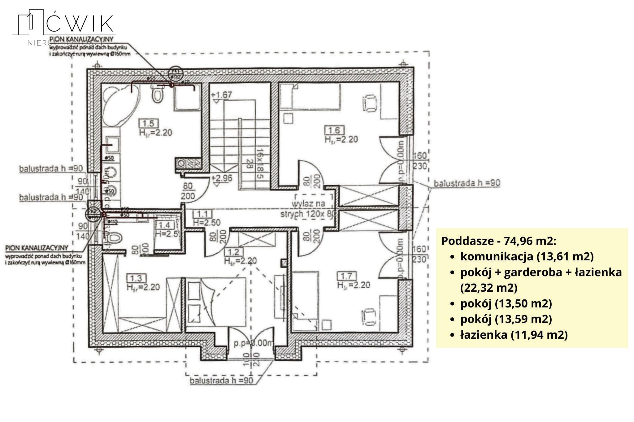
Poddasze - 74,96 m2:

  • komunikacja (13,61 m2)
  • pokój + garderoba + łazienka (22,32 m2)
  • pokój (13,50 m2)
  • pokój (13,59 m2)
  • łazienka (11,94 m2)
  • strych użytkowy - wyłożony płytą OSB (idealne miejsce do przechowywania)

Media:

  • wodociąg, kanalizacja, prąd i gaz - wykonane przyłącza do budynku;
  • światłowód - doprowadzony do budynku.

Otoczenie inwestycji:

  • Osiedle zamknięte z automatyczną bramą wjazdową;
  • Szeroka, wykostkowana droga osiedlowa gwarantująca wygodny przejazd;
  • Każdy dom ogrodzony - od frontu solidne ogrodzenie z kamienia z bramą automatyczną i furtką, z pozostałych stron panele;
  • Podjazdy, wejścia, tarasy i opaski wokół budynków wyłożone estetyczną kostką brukową. W pozostałej części zasiana trawa;
  • Każda działka oświetlona lampami zewnętrznymi.

Lokalizacja:
Proszówki to doskonała lokalizacja łącząca ciszę i spokój z łatwym dostępem do miasta. Zaledwie 2 minuty dzielą osiedle od Bochni, a autostrada A4 jest w zasięgu 7 minut jazdy samochodem, co umożliwia szybkie połączenie z Krakowem i innymi miastami. W odległości niecałych 4 km znajduje się dworzec PKP.

W okolicy dostępne jest pełne zaplecze handlowo-usługowe, w tym sklepy, restauracje, apteki, szkoły i przedszkola, co ułatwia codzienne życie. Jednocześnie bliskość Puszczy Niepołomickiej oraz okolicznych terenów zielonych sprzyja aktywnemu wypoczynkowi na świeżym powietrzu.

Dojazd do:

  • Bochni - 2 min
  • Brzeska - 15 min
  • Krakowa - 30 min
  • Tarnowa - 30 min

W pobliżu znajdziesz:

  • Sklep spożywczy (Biedronka) - 1 km
  • Plac zabaw - 600 m
  • Żłobek i przedszkole - 1,5 km
  • Szkoła podstawowa - 2 km
  • Restauracja - 1,3 km
  • Stacja Paliw - 1,3 km
  • Ośrodek zdrowia - 1,7 km
  • Apteka - 1,8 km
  • Basen - 1,8 km
  • Lodowisko - 1,8 km
  • Puszcza Niepołomicka - 3,1 km
Cena: 929 000 PLN

Kupujący nie płaci prowizji dla biura oraz jest zwolniony z podatku od czynności cywilnoprawnych 2%.

Zapraszam do kontaktu telefonicznego oraz na prezentację w terenie. Dom dostępny od zaraz!


Treść niniejszego ogłoszenia nie stanowi oferty handlowej w rozumieniu Kodeksu Cywilnego.
Oferta wysłana z programu IMO dla pośredników.
Informacje
Internet Osiedle zamknięte Drzwi/okna antywłamaniowe Rolety antywłamaniowe
bocheński, Bochnia, Proszówki

Kontakt